Mmmm..... cookies...

Afdeling

Allégade, Haslev Boligforening
1137-0

Boliginfo

Adresser

Jernbanegade 59B - 63D,
4690 Haslev

Boligtype

ic_arrow_diagonal_black_24px

Antal boliger

4

Energimærke

Andet

Altan: Ja
Elevator: Ja
Husdyr tilladt: Ja

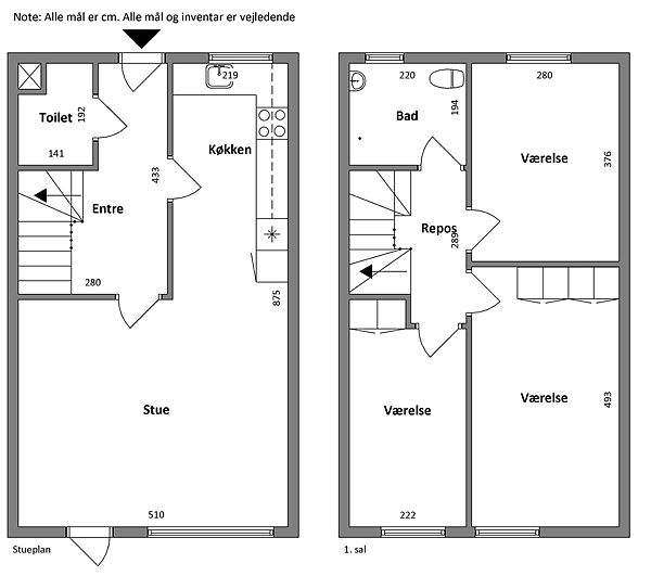
Værelser

4

Størrelser

101-104 m2

Husleje

8354 kr.

Indskud

26462-27248 kr

Ventetid

1 år - 3 år

Ventetid:

Udlejningen af boligerne i denne afdeling fordeler sig således at 25% af de ledige boliger udlejes efter fleksible kriterier.

Vi kender endnu ikke den forventede ventetid på fleksibel udlejning da aftalen er fra 01.01.2023.

Skriv dig op her!